Luxury houses - 73368hs
Floor Plan

Main Level

2nd Floor

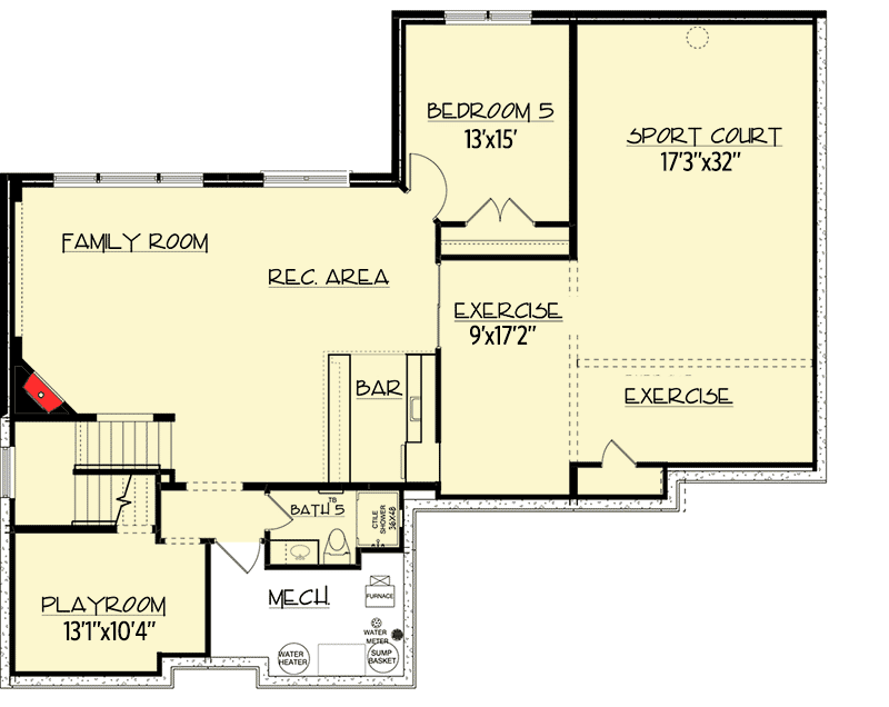
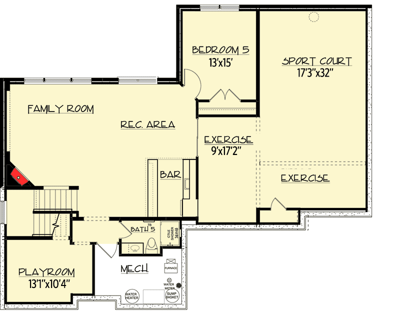
Lower Level


Plan details

Square Footage Breakdown

  • Total Heated Area:5,291 sq. ft.

  • Lower Level:1,485 sq. ft.

  • 1st Floor:1,593 sq. ft.

  • 2nd Floor:1,767 sq. ft.

  • Sports Court:504 sq. ft.

  • Basement Unfinished:117 sq. ft.

Beds/Baths

  • Bedrooms:5

  • Full Bathrooms:4

  • Half Bathrooms:1

Foundation Type

  • Standard Foundations:Basement

Exterior Walls

  • Standard Type(s):2x6


Dimensions

  • Width:62' 0"

  • Depth:58' 0"

Garage

  • Type:Attached

  • Area:777 sq. ft.

  • Count:3 cars

  • Entry Location:Front

Ceiling Heights

  • Floor / Height:Lower Level / 9' 0"First Floor / 9' 0"Second Floor / 8' 0"