Luxury houses - 61381UT
Floor Plan

Main Level

2nd Floor

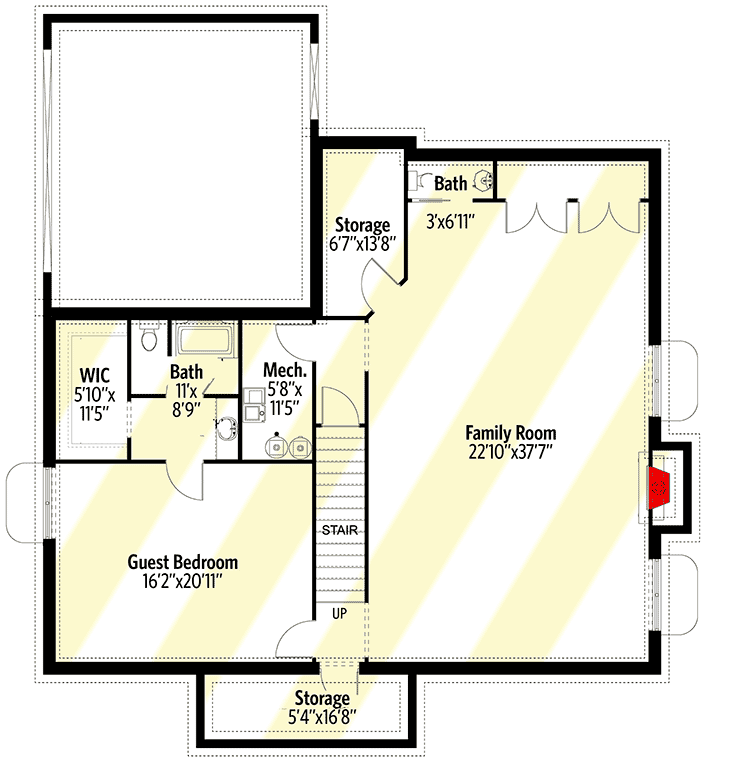
Lower Level


Plan details

Square Footage Breakdown

  • Total Heated Area:3,724 sq. ft.

  • 1st Floor:2,004 sq. ft.

  • 2nd Floor:1,720 sq. ft.

  • Optional Lower Level:2,004 sq. ft.

Beds/Baths

  • Bedrooms:4 or 5

  • Full Bathrooms:4

  • Half Bathrooms:1 or 2

Foundation Type

  • Standard Foundations:Basement

Exterior Walls

  • Standard Type(s):2x6


Dimensions

  • Width:53' 0"

  • Depth:60' 0"

  • Max Ridge Height:34' 6"

Ceiling Heights

  • Floor / Height:Lower Level / 9' 0"First Floor / 10' 0"Second Floor / 10' 0"

Roof Details

  • Primary Pitch:12 On 12

  • Secondary Pitch:10 On 12

  • Framing Type:Truss