Luxury houses - 73474HS_
Floor Plan

Main Level

2nd Floor

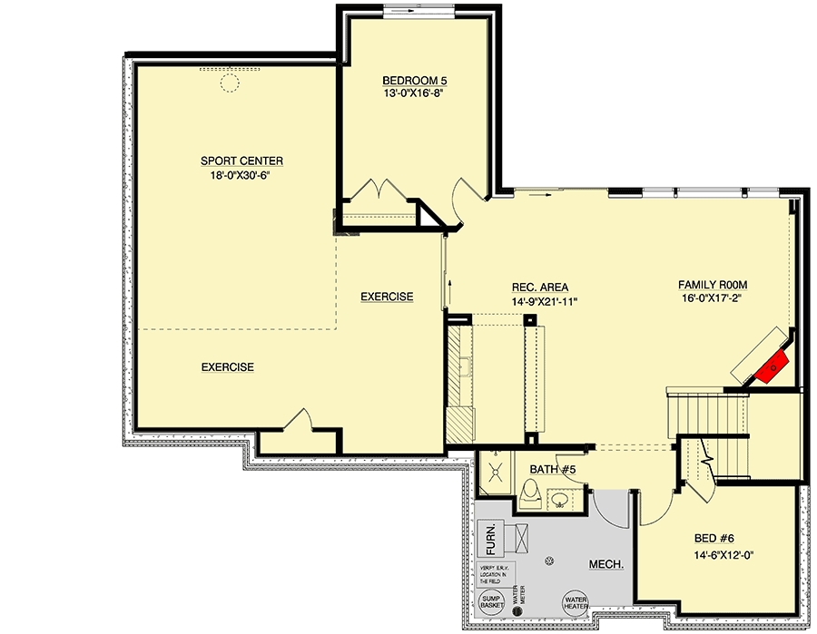
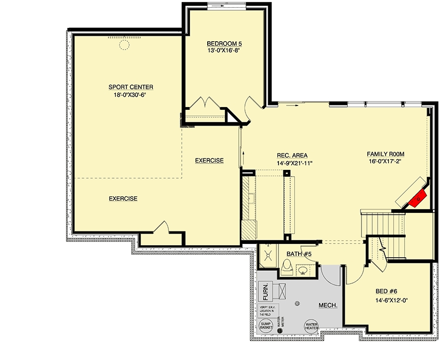
Lower Level


Plan details

Square Footage Breakdown

  • Total Heated Area:5,455 sq. ft.

  • Lower Level:1,990 sq. ft.

  • 1st Floor:1,697 sq. ft.

  • 2nd Floor:1,768 sq. ft.

  • Basement Unfinished:152 sq. ft.

Beds/Baths

  • Bedrooms:6

  • Full Bathrooms:4

Foundation Type

  • Standard Foundations:Walkout

Exterior Walls

  • Standard Type(s):2x6


Dimensions

  • Width:62' 0"

  • Depth:68' 6"

  • Max Ridge Height:35' 0"

Garage

  • Type:Attached

  • Area:954 sq. ft.

  • Count:4 cars

  • Entry Location:Front