Luxury houses - 23659JD
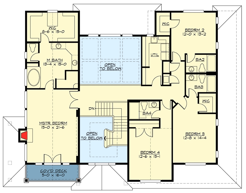
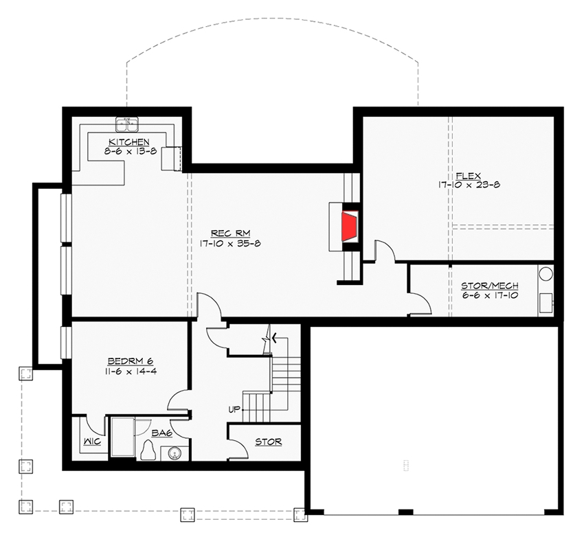
Floor Plan

Main Level

2nd Floor

Lower Level


Plan details

Square Footage Breakdown

  • Total Heated Area:4,043 sq. ft.

  • 1st Floor:2,083 sq. ft.

  • 2nd Floor:1,960 sq. ft.

  • Covered Patio:140 sq. ft.

  • Balcony / Veranda:80 sq. ft.

  • Optional Lower Level:2,091 sq. ft.

Beds/Baths

  • Bedrooms:5 or 6

  • Full Bathrooms:5 or 6

  • Half Bathrooms:1

Foundation Type

  • Standard Foundations:Basement


Dimensions

  • Width:67' 4"

  • Depth:50' 6"

  • Max Ridge Height:23' 6"

Garage

  • Type:Attached

  • Area:743 sq. ft.

  • Count:3 cars

  • Entry Location:Front

Ceiling Heights

  • Floor / Height:Lower Level / 9' 0"First Floor / 9' 0"Second Floor / 8' 0"

RoomTypeHeight
Great RoomSecond Story19' 0"
Dining RoomCoffered10' 0"
DenCoffered10' 0"
Master BedroomVaulted
Master BathVaulted

Roof Details

  • Primary Pitch:5 On 12

  • Secondary Pitch:3 On 12

  • Framing Type:Truss