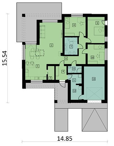
Ground floor

1. Kuchnia10,54 m2
2. Pokój dzienny + jadalnia38,48 m2
3. Spiżarnia3,12 m2
4. Wiatrołap5,04 m2
5. Pom. gospodarcze4,05 m2
6. Korytarz10,27 m2
7. Łazienka7,41 m2
8. Pokój13 m2
9. Pokój14,26 m2
10. Pokój10,83 m2
11. Wc3,26 m2
12. Pom. gospodarcze5,35 m2
13. Garaż jednostanowiskowy26,54 m2
Razem152,15 m2
If you need more information, please feel free to contact us.
Email: vino@jncnhomes.com