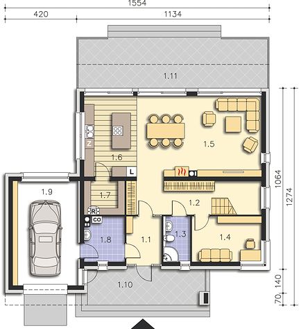
Ground floor

1. Wiatrołap5,44 m2
2. Korytarz13,66 m2 (15,76 m2)
3. Łazienka4,20 m2
4. Pokój10,91 m2
5. Pokój dzienny35,06 m2
6. Kuchnia14,69 m2
7. Spiżarnia4,71 m2
8. Kotłownia6,11 m2
9. Garaż jednostanowiskowy23,64 m2
10. Podest(15,33 m2)
11. Taras(34,02 m2)
Razem118,42 m2 (120,52 m2)
1st floor

1. Schody5,31 m2
2. Korytarz15,32 m2
3. Pokój14,12 m2
4. Pokój14,12 m2
5. Pokój20,11 m2
6. Pokój12,18 m2
7. Łazienka8,72 m2
8. Pom. gospodarcze6,11 m2
Razem95,99 m2
If you need more information, please feel free to contact us.
Email: vino@jncnhomes.com