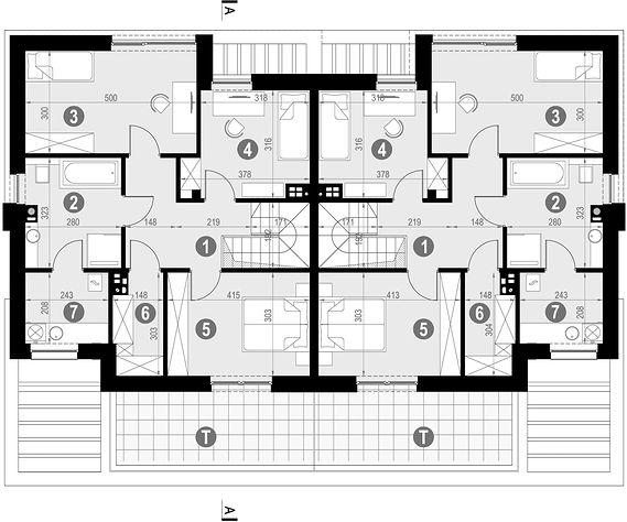
Ground floor

1. Wiatrołap8,39 m2
2. Korytarz6,09 m2
3. Pokój dzienny + jadalnia24,65 m2
4. Kuchnia9,14 m2
5. Spiżarnia1,33 m2
6. Łazienka2 m2
7. Garaż dwustanowiskowy30,46 m2
8. Taras(20,88 m2)
9. Wiatrołap8,39 m2
10. Korytarz6,09 m2
11. Pokój dzienny + jadalnia24,65 m2
12. Kuchnia9,14 m2
13. Spiżarnia1,33 m2
14. Łazienka2 m2
15. Garaż dwustanowiskowy30,46 m2
16. Taras(20,88 m2)
Razem164,12 m2
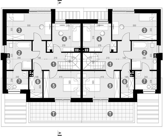
1st floor

1. Korytarz9,87 m2
2. Łazienka8,82 m2
3. Pokój15 m2
4. Pokój10,40 m2
5. Pokój12,57 m2
6. Garderoba4,09 m2
7. Kotłownia5,05 m2
8. Taras(14 m2)
9. Korytarz9,87 m2
10. Łazienka8,82 m2
11. Pokój15 m2
12. Pokój10,40 m2
13. Pokój12,57 m2
14. Garderoba4,09 m2
15. Kotłownia5,05 m2
16. Taras(14 m2)
Razem131,60 m2
If you need more information, please feel free to contact us.
Email: vino@jncnhomes.com