Ground floor

1. Wiatrołap4,05 m2
2. Pokój dzienny + jadalnia35,08 m2
3. Kuchnia12 m2
4. Pom. gospodarcze2,67 m2
5. Spiżarnia1,17 m2
6. Hall8,23 m2
7. Wc2,28 m2
8. Pokój10,80 m2
9. Pokój10,80 m2
10. Kotłownia7 m2
11. Garaż jednostanowiskowy20,27 m2
12. Pom. gospodarcze3,16 m2
13. Korytarz5,51 m2
14. Pokój + garderoba13,10 m2
15. Łazienka6,12 m2
16. Pokój6,72 m2
Razem148,96 m2
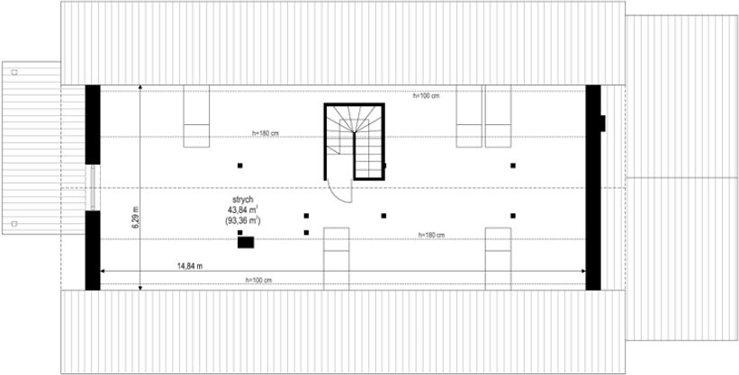
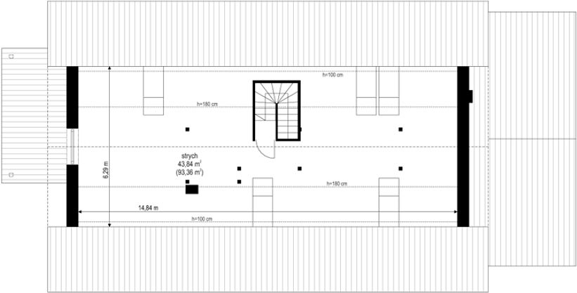
Attic

1. Strych43,84 m2 (93,36 m2)
Razem43,84 m2 (93,36 m2)
If you need more information, please feel free to contact us.
Email: vino@jncnhomes.com