Ground floor

1. Wiatrołap4,34 m2
2. Hall4,44 m2
3. Garderoba1,88 m2
4. Wc1,40 m2
5. Kuchnia5,95 m2
6. Pokój dzienny27,52 m2
7. Pokój12,22 m2
8. Schody4,97 m2
9. Pokój14,62 m2
10. Garderoba4,75 m2
11. Łazienka3,30 m2
12. Pom. gospodarcze4,45 m2
13. Garaż dwustanowiskowy32,31 m2
14. Taras
Razem122,15 m2

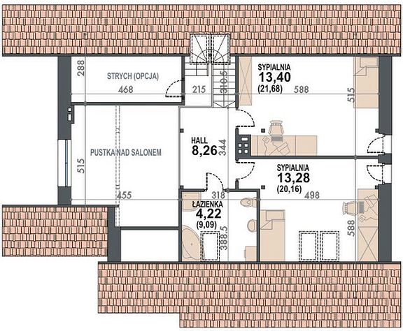
1. Hall8,26 m2
2. Pokój13,40 m2 (21,68 m2)
3. Pokój13,28 m2 (20,16 m2)
4. Łazienka4,22 m2 (9,09 m2)
Razem39,16 m2 (59,19 m2)
If you need more information, please feel free to contact us.
Email: vino@jncnhomes.com