Ground floor

1. Wiatrołap3,58 m2
2. Hall6,49 m2
3. Kuchnia11,76 m2
4. Pokój dzienny26,19 m2
5. Pokój12,31 m2
6. Łazienka5,24 m2
7. Pom. gospodarcze4,85 m2
8. Kotłownia6,58 m2
9. Garaż jednostanowiskowy19,49 m2
Razem96,49 m2
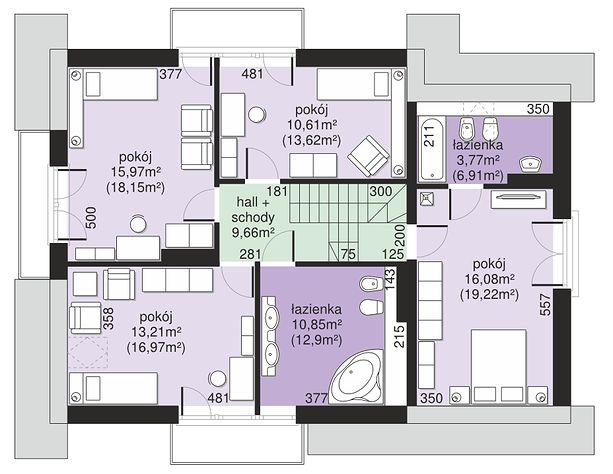
Attic

10. Hall + schody9,66 m2
11. Pokój16,08 m2 (19,22 m2)
12. Łazienka3,77 m2 (6,91 m2)
13. Łazienka10,85 m2 (12,90 m2)
14. Pokój13,21 m2 (16,97 m2)
15. Pokój15,97 m2 (18,15 m2)
16. Pokój10,61 m2 (13,62 m2)
Razem80,15 m2 (97,43 m2)
If you need more information, please feel free to contact us.
Email: vino@jncnhomes.com