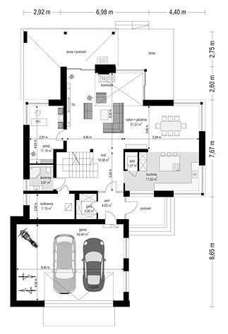
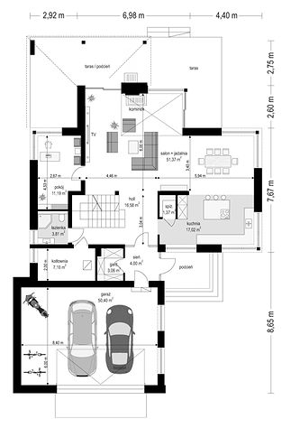
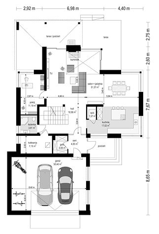
Ground floor

1. Wiatrołap4 m2
2. Garderoba3,06 m2
3. Hall16,58 m2
4. Kuchnia17,02 m2
5. Spiżarnia1,37 m2
6. Pokój dzienny + jadalnia51,37 m2
7. Pokój11,19 m2
8. Łazienka3,81 m2
9. Kotłownia7,10 m2
10. Garaż dwustanowiskowy50,40 m2
Razem165,90 m2
Attic

1. Hall + antresola21,41 m2
2. Pokój14,96 m2
3. Pokój14,29 m2
4. Pom. gospodarcze5,85 m2
5. Pokój15,54 m2
6. Garderoba7,32 m2
7. Łazienka7,27 m2
8. Strych19,53 m2 (49,77 m2)
Razem106,17 m2 (136,41 m2)
If you need more information, please feel free to contact us.
Email: vino@jncnhomes.com