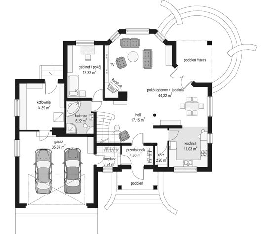
Ground floor

1. Pokój dzienny + jadalnia44,22 m2
2. Hall17,15 m2
3. Kuchnia11,03 m2
4. Magazyn2,20 m2
5. Wiatrołap4,60 m2
6. Korytarz3,84 m2
7. Pokój13,32 m2
8. Łazienka6,22 m2
9. Kotłownia14,39 m2
10. Garaż dwustanowiskowy35,87 m2
Razem152,84 m2
Attic

1. Pokój17,28 m2 (25,40 m2)
2. Pokój14,02 m2 (21,03 m2)
3. Łazienka7,66 m2 (14,42 m2)
4. Hall13,90 m2
5. Pokój17,86 m2 (25,16 m2)
6. Pokój16,80 m2
7. Pom. gospodarcze13,22 m2 (36,60 m2)
Razem100,74 m2 (153,31 m2)
If you need more information, please feel free to contact us.
Email: vino@jncnhomes.com