Ground floor

1. Wiatrołap7,35 m2
2. Hall21,73 m2
3. Spiżarnia2,04 m2
4. Kuchnia13,73 m2
5. Pokój dzienny + jadalnia59,68 m2
6. Pokój14,06 m2
7. Pom. gospodarcze12,31 m2
8. Sauna6,71 m2
9. Wc1,37 m2
10. Garaż dwustanowiskowy44,54 m2
Razem183,52 m2
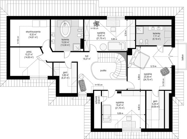
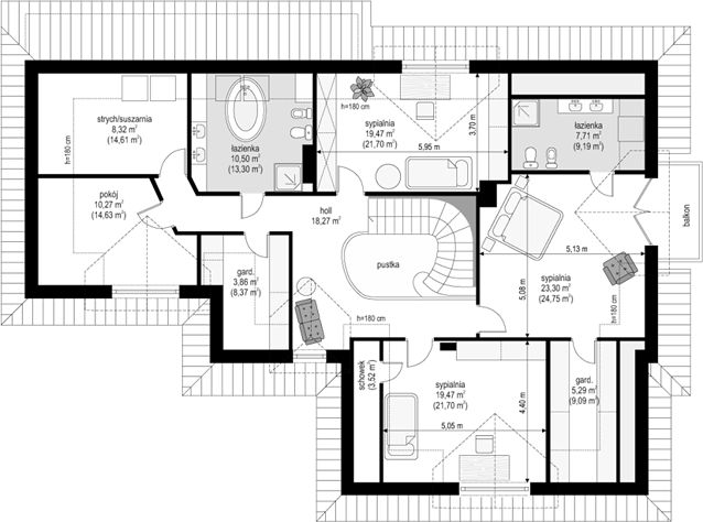
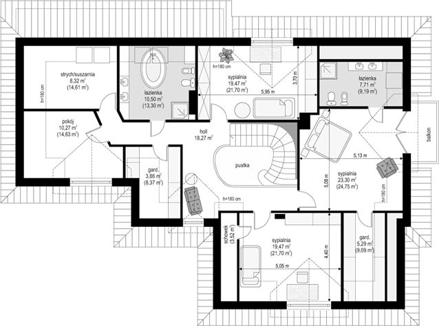
Attic

1. Strych8,32 m2 (14,61 m2)
2. Pokój10,27 m2 (14,63 m2)
3. Łazienka10,50 m2 (13,30 m2)
4. Pokój19,47 m2 (21,70 m2)
5. Łazienka7,71 m2 (9,19 m2)
6. Garderoba3,86 m2 (8,37 m2)
7. Hall18,27 m2
8. Pokój23,30 m2 (24,75 m2)
9. Pokój19,74 m2 (21,70 m2)
10. Garderoba5,29 m2 (9,09 m2)
11. Garderoba3,52 m2
Razem130,25 m2 (159,13 m2)
If you need more information, please feel free to contact us.
Email: vino@jncnhomes.com