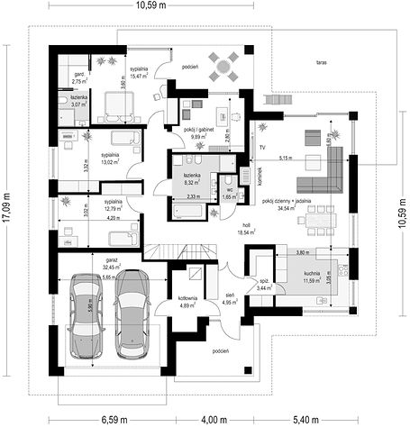
Ground floor

1. Wiatrołap4,95 m2
2. Hall18,54 m2
3. Spiżarnia3,44 m2
4. Kuchnia11,59 m2
5. Pokój dzienny + jadalnia34,54 m2
6. Wc1,65 m2
7. Łazienka8,26 m2
8. Pokój9,89 m2
9. Pokój15,47 m2
10. Garderoba2,75 m2
11. Łazienka3,07 m2
12. Pokój13,02 m2
13. Pokój12,79 m2
14. Kotłownia4,89 m2
15. Garaż dwustanowiskowy32,45 m2
Razem177,30 m2
Attic

1. Strych71,67 m2 (202,61 m2)
Razem71,67 m2 (202,61 m2)
If you need more information, please feel free to contact us.
Email: vino@jncnhomes.com