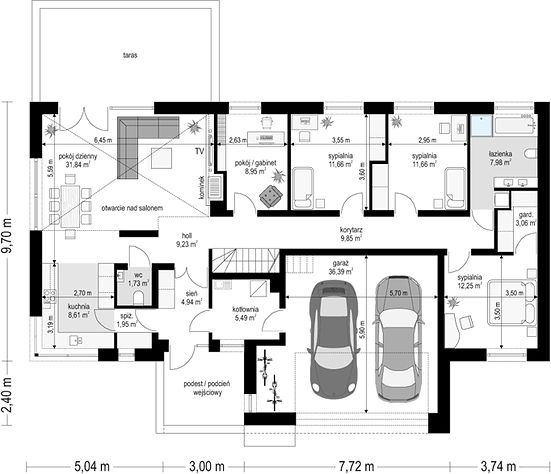
Ground floor

1. Wiatrołap4,20 m2
2. Hall8,43 m2
3. Kuchnia12,15 m2
4. Pokój dzienny + jadalnia36,72 m2
5. Wc1,80 m2
6. Pom. gospodarcze7,58 m2
7. Garaż dwustanowiskowy33,49 m2
Razem104,37 m2
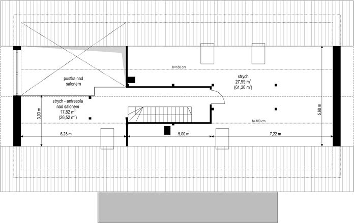
Attic

1. Korytarz7,92 m2
2. Pokój14,47 m2
3. Łazienka8 m2
4. Garderoba2,68 m2
5. Pokój15,86 m2
6. Pokój8,78 m2
7. Pokój13,64 m2
Razem71,35 m2
If you need more information, please feel free to contact us.
Email: vino@jncnhomes.com