Ground floor

1. Wiatrołap3,30 m2
2. Kuchnia9,50 m2
3. Spiżarnia1,90 m2
4. Pokój dzienny + jadalnia25,20 m2
5. Korytarz6,30 m2
6. Pokój9,50 m2
7. Łazienka3,70 m2
8. Kotłownia5,20 m2
9. Garaż jednostanowiskowy18,40 m2
10. Pom. gospodarcze4,70 m2
Razem87,70 m2
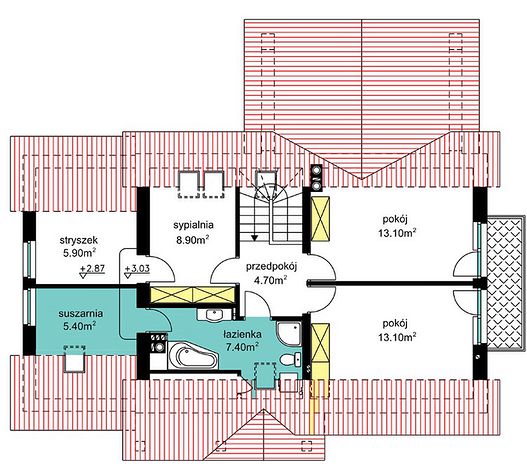
Attic

1. Korytarz4,70 m2
2. Pokój13,10 m2
3. Pokój13,10 m2
4. Łazienka7,40 m2
5. Pokój8,90 m2
6. Strych5,90 m2
7. Pom. gospodarcze5,40 m2
Razem58,50 m2
If you need more information, please feel free to contact us.
Email: vino@jncnhomes.com