Modern houses
LK&1159
PLAN DESCRIPTION
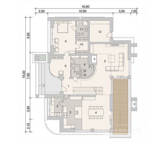
FLOOR PLANS

Ground floor

Floor


FULL SPECS & FEATURES
1. Usable area293,38 m²
2. Additional area20,92 m²
3. Total surface496,37 m²
4. Building area243,62 m²
5. Net volume936,23 m³
6. Gross volume1990,14 m³
7. Building height9,7 m
8. Roof angle28 °
9. Roof area196,42 m²
10. Сeiling height2,7 m
11. Minimum plot size27,7 x 23,4 m


If you need more information, please feel free to contact us.
Email: vino@jncnhomes.com