Modern houses
LK&1562
PLAN DESCRIPTION
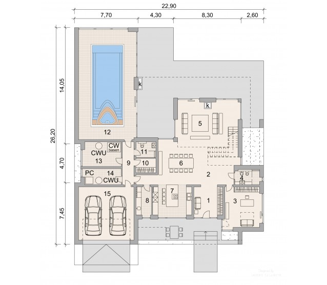
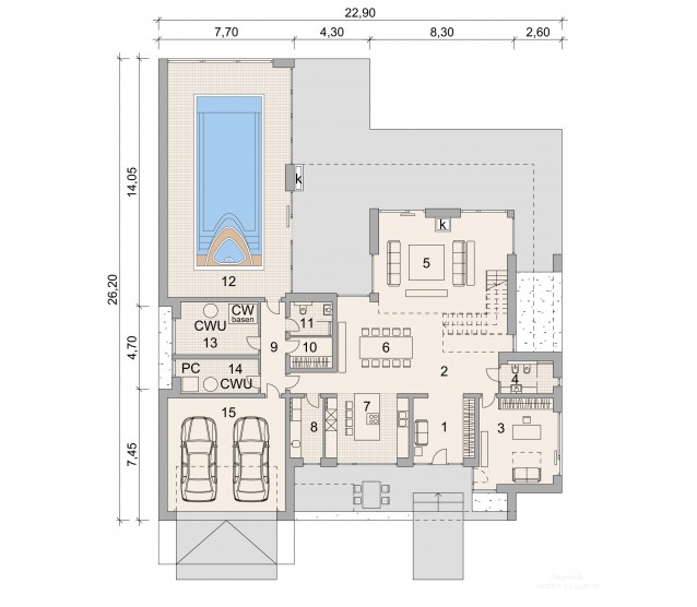
FLOOR PLANS

Ground floor

Floor


FULL SPECS & FEATURES
1. Usable area428,43 m²
2. Area garage44,07 m²
3. Total surface880,63 m²
4. Building area390,41 m²
5. Net volume1300,90 m³
6. Gross volume2020,40 m³
7. Building height9,66 m
8. Roof angle25 °
9. Сeiling height2,7 m
10. Minimum plot size30,90 x 34,20 m


If you need more information, please feel free to contact us.
Email: vino@jncnhomes.com