Modern houses
LK&1617
PLAN DESCRIPTION
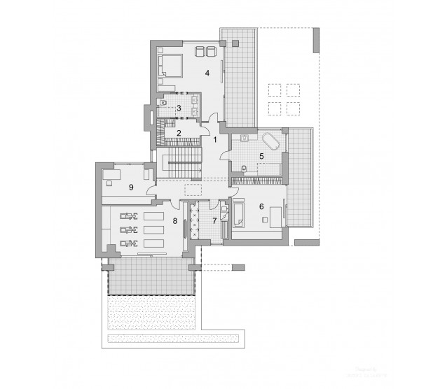
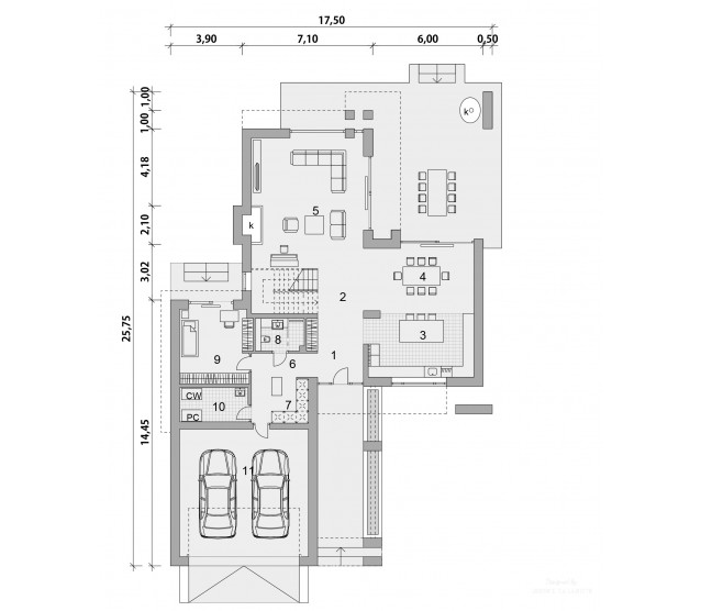
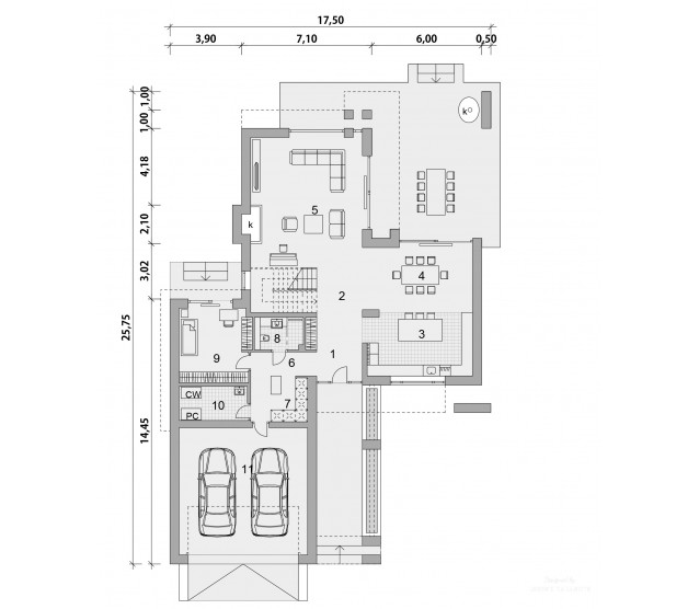
FLOOR PLANS

Ground floor

Floor


FULL SPECS & FEATURES
1. Usable area278,49 m²
2. Area garage49,00 m²
3. Total surface497,30 m²
4. Building area271,10 m²
5. Net volume963,40 m³
6. Gross volume1656,30 m³
7. Building height9,00 m
8. Roof angle30 °
9. Roof area82,00 + 197,05 m²
10. Сeiling height2,70 m
11. Minimum plot size24,00 x 32,75 m


If you need more information, please feel free to contact us.
Email: vino@jncnhomes.com