Traditional houses
LK&711
PLAN DESCRIPTION
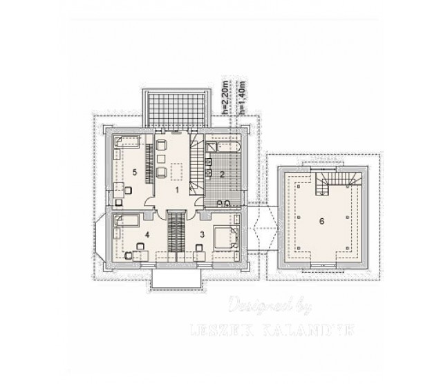
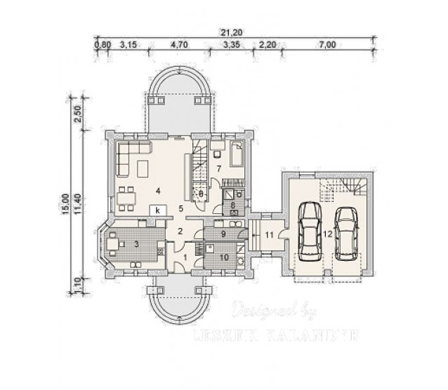
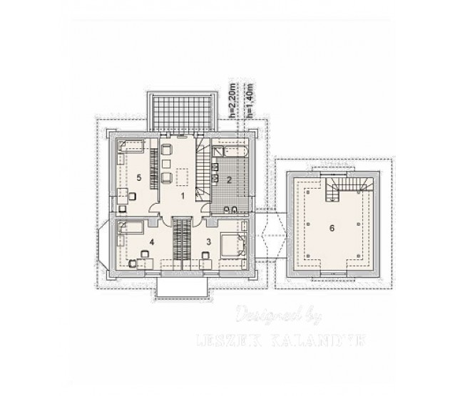
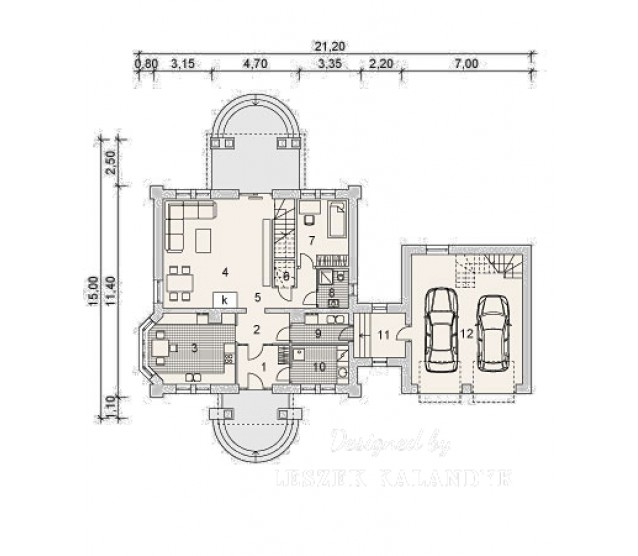
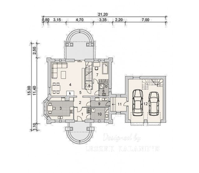
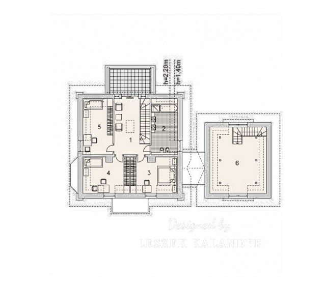
FLOOR PLANS

Ground floor

Attic


FULL SPECS & FEATURES
1. Usable area163,06 m²
2. Area garage42 m²
3. Additional area31,68 m²
4. Total surface378,98 m²
5. Building area188,62 m²
6. Net volume702,23 m³
7. Gross volume1280,19 m³
8. Energy for heating12,44 kWh/m²*year
9. Building height8,97 m
10. Attic wall height1 m
11. Roof angle48 °
12. Roof area335,85 m²
13. Сeiling height2,70/2,50 m
14. Minimum plot size22,85 x 28,2 m


If you need more information, please feel free to contact us.
Email: vino@jncnhomes.com