Traditional houses
LK&1132
PLAN DESCRIPTION
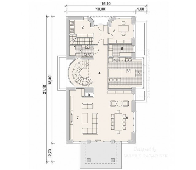
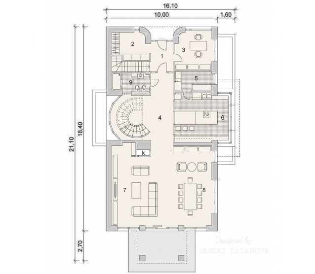
FLOOR PLANS

Basement

Ground floor

Attic


FULL SPECS & FEATURES
1. Usable area163,87 m²
2. Basement area50,1 m²
3. Area garage39,44 m²
4. Additional area32,61 m²
5. Total surface459,8 m²
6. Building area205,79 m²
7. Net volume842,17 m³
8. Gross volume1498,13 m³
9. Energy for heating14,81 kWh/m²*year
10. Building height9,07 m
11. Attic wall height0,83 m
12. Roof angle47/60/30/24 °
13. Roof area365,42 m²
14. Сeiling height2,59/2,70/2,65/2,90 m
15. Minimum plot size28,2 x 22,9 m


If you need more information, please feel free to contact us.
Email: vino@jncnhomes.com