Traditional houses
LK&1196
PLAN DESCRIPTION
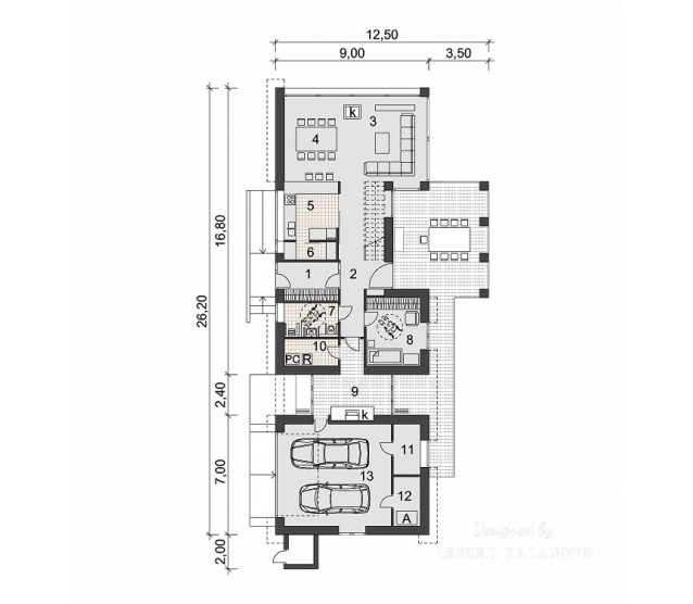
FLOOR PLANS

Ground floor

Attic


FULL SPECS & FEATURES
1. Usable area224,9 m²
2. Area garage37,8 m²
3. Additional area14,3 m²
4. Total surface463,06 m²
5. Building area249,52 m²
6. Net volume1043,93 m³
7. Gross volume1762,95 m³
8. Building height10,9 m
9. Attic wall height1,05 m
10. Roof angle50 °
11. Roof area398,5 m²
12. Сeiling height2,70 / 3,00 m
13. Minimum plot size22,5 x 34,2 m


If you need more information, please feel free to contact us.
Email: vino@jncnhomes.com