Traditional houses
LK&1259
PLAN DESCRIPTION
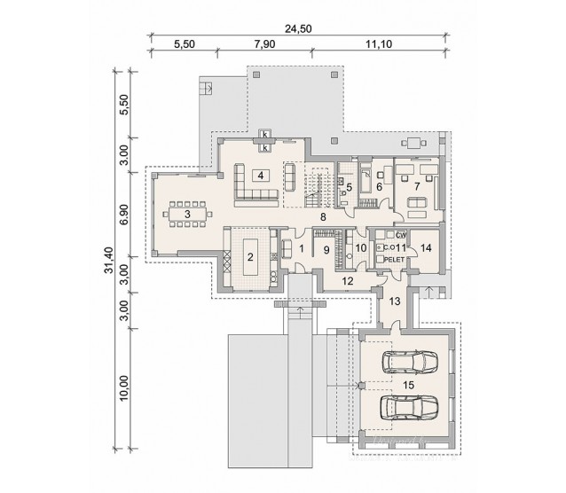
FLOOR PLANS

Ground floor

Attic


FULL SPECS & FEATURES
1. Usable area308,94 m²
2. Area garage59,5 m²
3. Additional area7,96 m²
4. Total surface752,86 m²
5. Building area417,15 m²
6. Net volume1173,3 m³
7. Gross volume2355,85 m³
8. Energy for heating17 kWh/m²*year
9. Building height10,28 m
10. Roof angle35 °
11. Roof area500 m²
12. Сeiling height2,70, 3,00 m
13. Minimum plot size32,5 x 38,4 m


If you need more information, please feel free to contact us.
Email: vino@jncnhomes.com