Traditional houses
LK&1292
PLAN DESCRIPTION
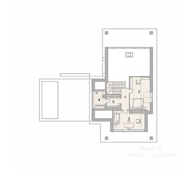
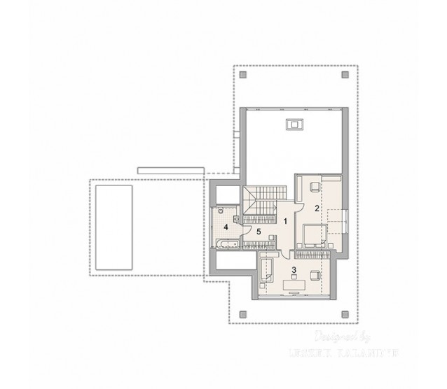
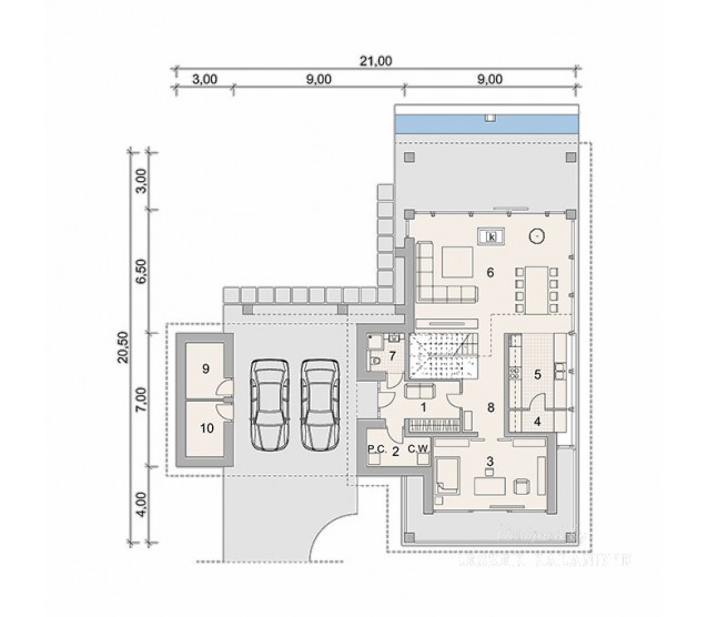
FLOOR PLANS

Ground floor

Floor


FULL SPECS & FEATURES
1. Usable area162,62 m²
2. Additional area11,76 m²
3. Total surface466,25 m²
4. Building area181,6 m²
5. Net volume767,87 m³
6. Gross volume1026,22 m³
7. Building height8,3 m
8. Attic wall height1,4 m
9. Roof angle40 °
10. Сeiling height2,7 m
11. Minimum plot size26,5 x 28 m


If you need more information, please feel free to contact us.
Email: vino@jncnhomes.com