ABOUT MODULAR STEEL FRAME
Modular Steel Frame
Built Offsite
Our Policies
HOME
JNCN STEEL CONSTRUCTION
TECHNOLOGY
BENEFITS
MODULAR HOMES
INSPIRATIONS -1
INSPIRATIONS -2
INSPIRATIONS -2
INSPIRATIONS -3
INSPIRATIONS -4
PORTFOLIO
CUSTOM DESIGN
HOUSE PLANS
PLUG AND PLAY HOMES
CUSTOM PROCESS
ABOUT US
CONTACT
United States / CN
Login
Traditional houses
LK&1342
PLAN DESCRIPTION
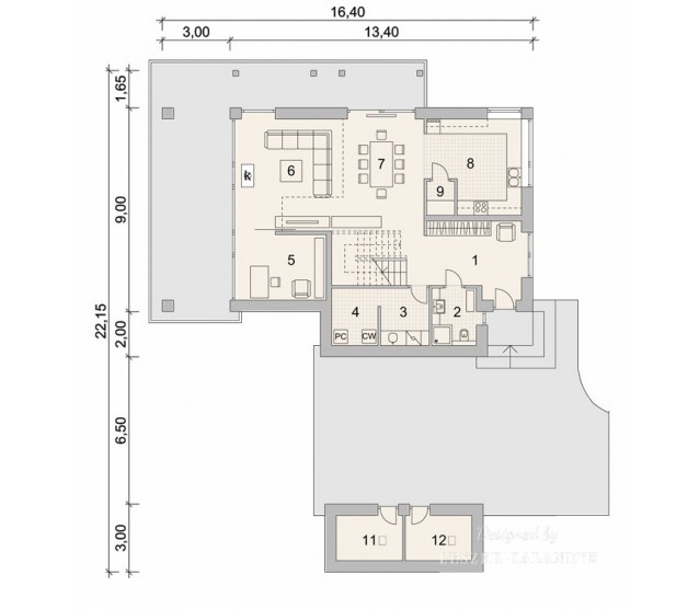
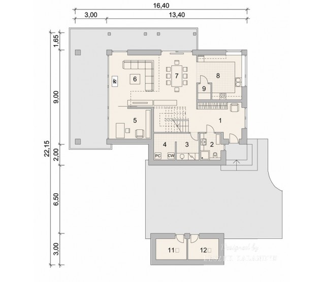
FLOOR PLANS
Ground floor
FULL SPECS & FEATURES
1. Usable area
158,49 m²
2. Additional area
11,78 m²
3. Total surface
242,85 m²
4. Building area
135,43 m²
5. Net volume
576,61 m³
6. Gross volume
731,19 m³
7. Building height
8,9 m
8. Attic wall height
0,9 m
9. Roof angle
41 °
10. Сeiling height
2,7 m
11. Minimum plot size
28,15 x 24,4 m
If you need more information, please feel free to contact us.
Email:
vino@jncnhomes.com