Traditional houses
LK&1332
PLAN DESCRIPTION
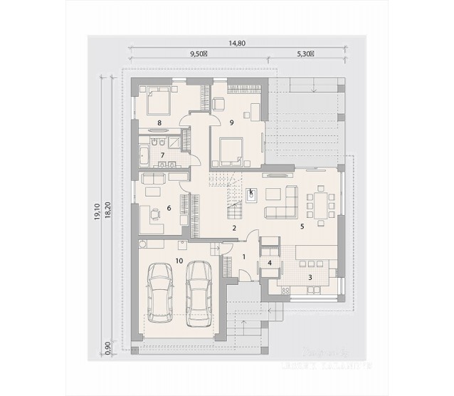
FLOOR PLANS

Ground floor

Attic


FULL SPECS & FEATURES
1. Usable area170,54 m²
2. Area garage36,04 m²
3. Attic area12,81 m²
4. Total surface427 m²
5. Building area217,6 m²
6. Net volume890 m³
7. Gross volume944 m³
8. Building height7,57 m
9. Attic wall height0,16 m
10. Roof angle35 °
11. Roof area313 m²
12. Сeiling height3,00; 2,70 m m
13. Minimum plot size22,8 x 27,1 m


If you need more information, please feel free to contact us.
Email: vino@jncnhomes.com