Traditional houses
LK&1521
PLAN DESCRIPTION
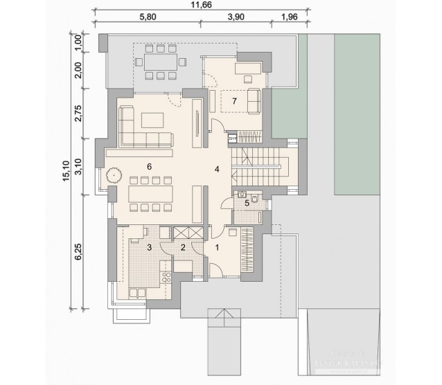
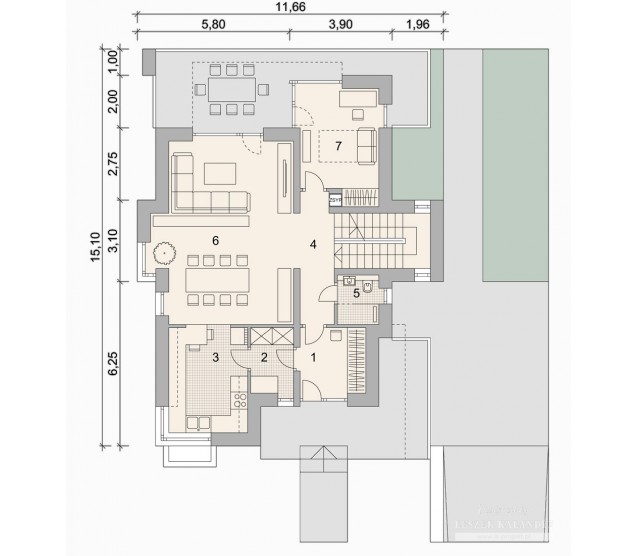
FLOOR PLANS

Basement

Ground floor

Floor


FULL SPECS & FEATURES
1. Usable area159,01 m²
2. Basement area88,63 m²
3. Total surface340,96 m²
4. Building area124,75 m²
5. Net volume699,61 m³
6. Gross volume1393,07 m³
7. Building height9,48 m
8. Roof angle35 °
9. Roof area131,92 m²
10. Сeiling height2,77 m; 2,83 m
11. Minimum plot size11,37 x 15,1 m


If you need more information, please feel free to contact us.
Email: vino@jncnhomes.com