Traditional houses
LK&1596
PLAN DESCRIPTION
FLOOR PLANS

Basement

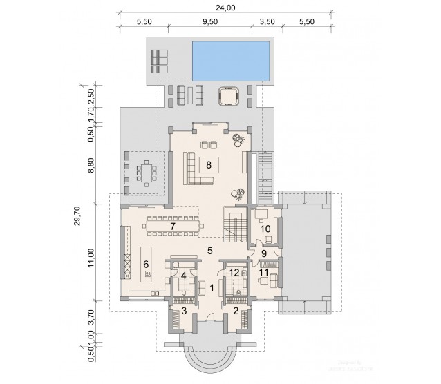
Ground floor

Attic


FULL SPECS & FEATURES
1. Usable area450,15 m²
2. Total surface615,28 m²
3. Building area321,05 m²
4. Net volume
5. Gross volume
6. Building height9,40 m
7. Roof angle42 °
8. Roof area
9. Сeiling heightm
10. Minimum plot size40,70 x 32,00 m


If you need more information, please feel free to contact us.
Email: vino@jncnhomes.com