ABOUT MODULAR STEEL FRAME
Modular Steel Frame
Built Offsite
Our Policies
HOME
JNCN STEEL CONSTRUCTION
TECHNOLOGY
BENEFITS
MODULAR HOMES
INSPIRATIONS -1
INSPIRATIONS -2
INSPIRATIONS -2
INSPIRATIONS -3
INSPIRATIONS -4
PORTFOLIO
CUSTOM DESIGN
HOUSE PLANS
PLUG AND PLAY HOMES
CUSTOM PROCESS
ABOUT US
CONTACT
United States / CN
Login
Traditional houses
LK&908
PLAN DESCRIPTION
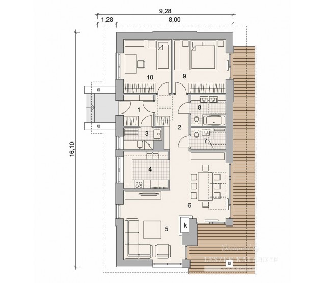
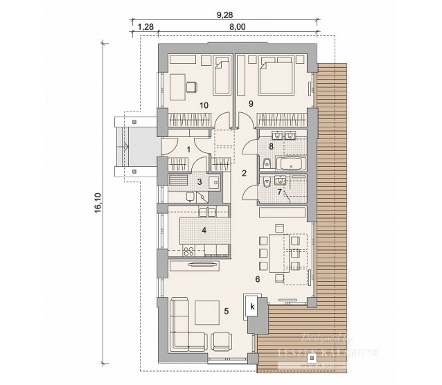
FLOOR PLANS
Ground floor
FULL SPECS & FEATURES
1. Usable area
93,56 m²
2. Total surface
121 m²
3. Building area
160,14 m²
4. Net volume
412,07 m³
5. Gross volume
671,7 m³
6. Energy for heating
7,46 kWh/m²*year
7. Building height
6,47 m
8. Roof angle
35 °
9. Roof area
206,5 m²
10. Сeiling height
5,43 m
11. Minimum plot size
16,34 x 23,22 m
If you need more information, please feel free to contact us.
Email:
vino@jncnhomes.com