Barnhouses
LK&1172
PLAN DESCRIPTION
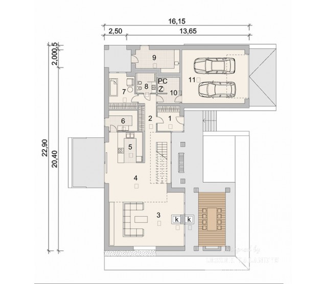
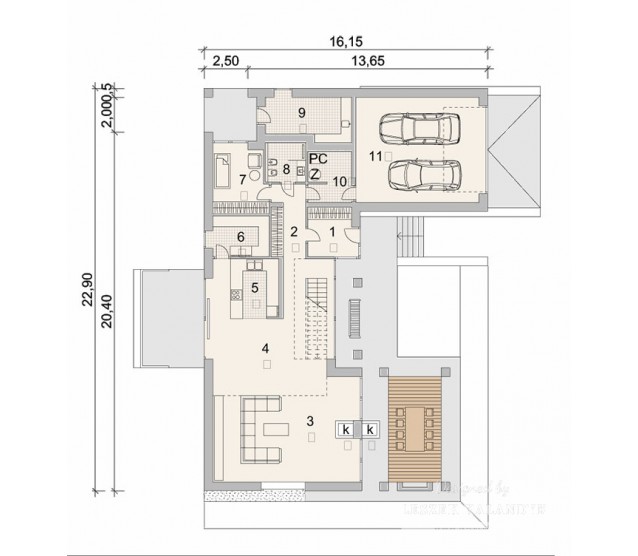
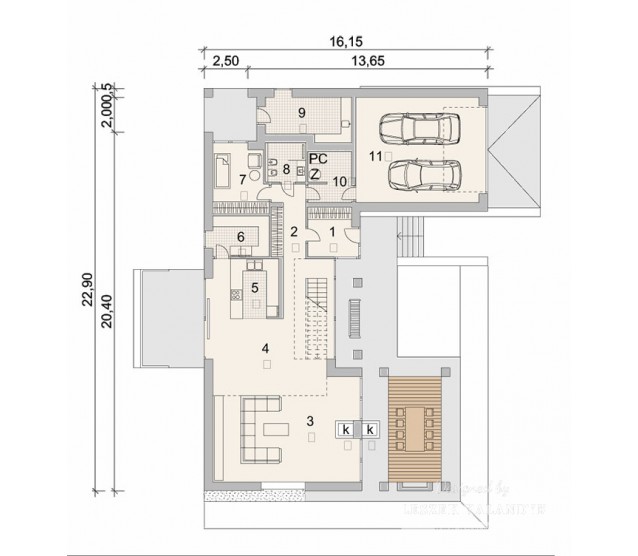
FLOOR PLANS

Ground floor

Attic


FULL SPECS & FEATURES
1. Usable area220,05 m²
2. Area garage42 m²
3. Additional area15,65 m²
4. Total surface502,73 m²
5. Building area242,58 m²
6. Net volume1078,76 m³
7. Gross volume1436,54 m³
8. Building height9 m
9. Roof angle45 °
10. Roof area502,24 m²
11. Сeiling height2,7 m
12. Minimum plot size26,15 x 30,9 m


If you need more information, please feel free to contact us.
Email: vino@jncnhomes.com