Barnhouses
LK&1329
PLAN DESCRIPTION
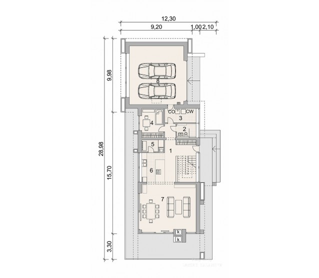
FLOOR PLANS

Ground floor

Attic


FULL SPECS & FEATURES
1. Usable area175,16 m²
2. Area garage53,02 m²
3. Attic area20,45 m²
4. Total surface544,63 m²
5. Building area198,84 m²
6. Net volume745,59 m³
7. Gross volume1198,92 m³
8. Building height9 m
9. Attic wall height1,2 m
10. Roof angle45 °
11. Сeiling height2,7 m
12. Minimum plot size18,7 x 35,03 m


If you need more information, please feel free to contact us.
Email: vino@jncnhomes.com