Barnhouses
LK&1479
PLAN DESCRIPTION
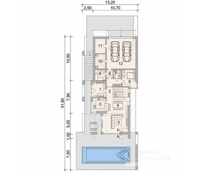
FLOOR PLANS

Ground floor

Attic


FULL SPECS & FEATURES
1. Usable area210,52 m²
2. Area garage50,04 m²
3. Total surface394,56 m²
4. Building area240,81 m²
5. Net volume949,1 m³
6. Gross volume1170,23 m³
7. Building height9,15 m
8. Attic wall height0,9 m
9. Roof angle42 °
10. Сeiling height2,70 m; 4,45 m
11. Minimum plot size37,4 x 20,2 m


If you need more information, please feel free to contact us.
Email: vino@jncnhomes.com