Barnhouses
LK&1605
PLAN DESCRIPTION
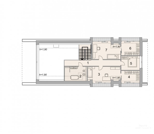
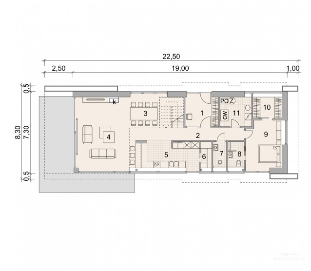
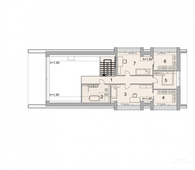
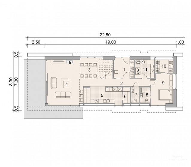
FLOOR PLANS

Ground floor

Attic


FULL SPECS & FEATURES
1. Usable area162,89 m²
2. Additional area7,42 m²
3. Total surface261,47 m²
4. Building area139,28 m²
5. Net volume
6. Gross volume
7. Building height8,54 m
8. Attic wall heightm
9. Roof angle42 °
10. Roof area
11. Сeiling height2,70 m
12. Minimum plot size16,90 x 27,00 m


If you need more information, please feel free to contact us.
Email: vino@jncnhomes.com