Barnhouses
LK&1604
PLAN DESCRIPTION
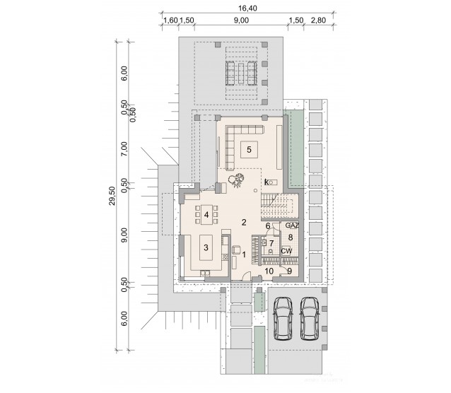
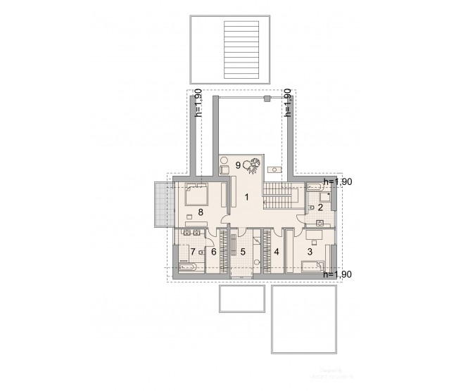
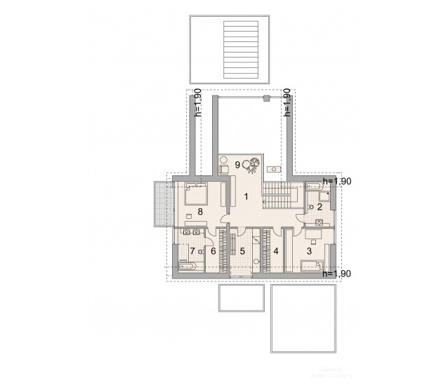
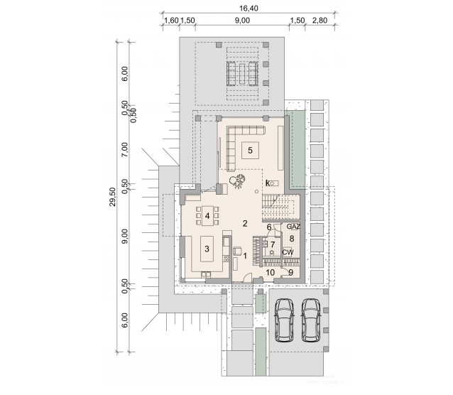
FLOOR PLANS

Ground floor

Attic


FULL SPECS & FEATURES
1. Usable area209,10 m²
2. Total surface300,36 m²
3. Building area160,25 m²
4. Net volume
5. Gross volume
6. Building height9,00 m
7. Roof angle41,55 °
8. Roof area
9. Сeiling height2,70 m
10. Minimum plot size22,30 x 34,50 m


If you need more information, please feel free to contact us.
Email: vino@jncnhomes.com