Barnhouses
LK&1614
PLAN DESCRIPTION
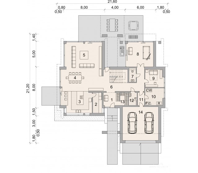
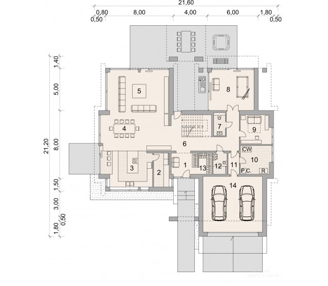
FLOOR PLANS

Ground floor

Attic


FULL SPECS & FEATURES
1. Usable area369,59 m²
2. Area garage45,85 m²
3. Total surface599,00 m²
4. Building area304,45 m²
5. Net volume
6. Gross volume
7. Building height8,75 m
8. Roof angle42,30 °
9. Roof area
10. Сeiling height2,85 m
11. Minimum plot size29,60 x 30,30 m


If you need more information, please feel free to contact us.
Email: vino@jncnhomes.com