Barnhouses
LK&1622
PLAN DESCRIPTION
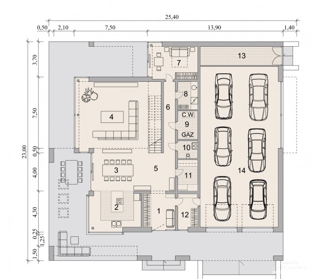
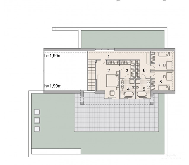
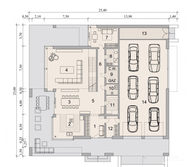
FLOOR PLANS

Ground floor


Attic


FULL SPECS & FEATURES
1. Usable area414,98 m²
2. Area garage135,08 m²
3. Additional area16,09 m²
4. Total surface578,95 m²
5. Building area391,55 m²
6. Net volume
7. Gross volume
8. Building height9,20 m
9. Roof angle42 °
10. Roof area
11. Сeiling height3,00; 2,90 m
12. Minimum plot size30,90 x 29,50 m


If you need more information, please feel free to contact us.
Email: vino@jncnhomes.com